Ouverture de passage pour ventilation, avec entrée d'air linéaire. Mise en place au niveau de la porte intérieure
TVR030 Ouverture de passage pour ventilation, avec entrée d'air linéaire. Mise en place au niveau de la porte intérieure
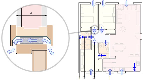
Ouverture de passage pour recirculation de l'air intérieur, dotée d'entrée d'air pour ouverture de passage divisible, télescopique, composée d'un élément central d'un matériau phono-absorbant de 60x20 mm de section et 825 mm de longueur, avec deux profilés supérieurs télescopiques en PVC, section 143 cm³, débit nominal 17,8 l/s et isolation acoustique de 29 dBA, selon NF EN ISO 717-1. Mise en place au-dessus du vantail de la porte, de 725 mm de largeur, entre le cadre et le précadre, dans une cloison de 60 jusqu'à 100 mm d'épaisseur.
Prix

46,24€

U
Exportation

Entrée d'air
Épaisseur de la cloison "A" (mm)
Largeur du vantail de la porte (mm)
1:
Ouverture de soufflage.
2:
Ouverture de passage.
3:
Ouverture d'extraction.
4:
Conduit d'extraction.

Code interne

Désignation

Quantité

Unité

Prix unitaire

Prix total

mt42sva245a

Entrée d'air pour ouverture de passage divisible, télescopique, composée d'un élément central d'un matériau phono-absorbant de 60x20 mm de section et 825 mm de longueur, avec deux profilés supérieurs télescopiques en PVC, section 143 cm³, débit nominal 17,8 l/s et isolation acoustique de 29 dBA, selon NF EN ISO 717-1.

0,900

U

34,00

30,60

mo011

Compagnon professionnel III/CP2 monteur.

0,250

h

31,65

7,91

mo080

Ouvrier professionnel II/OP monteur.

0,250

h

27,27

6,82

 

Frais de chantier des unités d'ouvrage

2,000

%

45,33

0,91

Coût d'entretien décennal: 2,31€ les 10 premières années.

 

Montant total HT:

46,24


UNITÉ D'OUVRAGE TVR030: OUVERTURE DE PASSAGE POUR VENTILATION, AVEC ENTRÉE D'AIR LINÉAIRE. MISE EN PLACE AU NIVEAU DE LA PORTE INTÉRIEURE.


CLAUSES TECHNIQUES

Ouverture de passage pour recirculation de l'air intérieur, dotée d'entrée d'air pour ouverture de passage divisible, télescopique, composée d'un élément central d'un matériau phono-absorbant de 60x20 mm de section et 825 mm de longueur, avec deux profilés supérieurs télescopiques en PVC, section 143 cm³, débit nominal 17,8 l/s et isolation acoustique de 29 dBA, selon NF EN ISO 717-1. Mise en place au-dessus du vantail de la porte, de 725 mm de largeur, entre le cadre et le précadre, dans une cloison de 60 jusqu'à 100 mm d'épaisseur.



CRITÈRE POUR LE MÉTRÉ

Nombre d'unités prévues, selon documentation graphique du Projet.



CLAUSES PRÉALABLES DEVANT ÊTRE REMPLIES AVANT L'EXÉCUTION DES UNITÉS D'OUVRAGE


DE L'ÉLÉMENT PORTEUR.

On vérifiera que l'emplacement correspond à celui du Projet et que l'espace est suffisant pour l'installation.



PROCESSUS D'EXÉCUTION


PHASES D'EXÉCUTION.

Implantation. Mise en place et fixation de l'entrée d'air.


CLAUSES DE FINALISATION.

La ventilation sera adéquate.



CRITÈRE POUR LE MÉMOIRE

On mesurera le nombre d'unités réellement exécutées selon les spécifications du Projet.



Code CED

Type

Poids (kg)

Volume (l)

15 01 01

Emballages en papier et en carton.

0,082

0,109

17 02 03

Plastique.

0,041

0,068

 

Emballages:

0,123

0,178